Location and Mounting Considerations
Inverter Mounting. Follow the Sol-Ark inverter installation manual.
Cabinet Mounting. Follow the AES Cabinet Outdoor C&I Installation and Operation or the AES 210HV Installation and Operation Manual.
Separation Distance. The inverter and battery cabinet do not need to be adjacent. The inverter supports up to 4 AWG copper wiring, with a maximum continuous current of 50 A per pair of conductors. Ensure the distance between the inverter and cabinet contributes less than a 2.5% voltage drop.
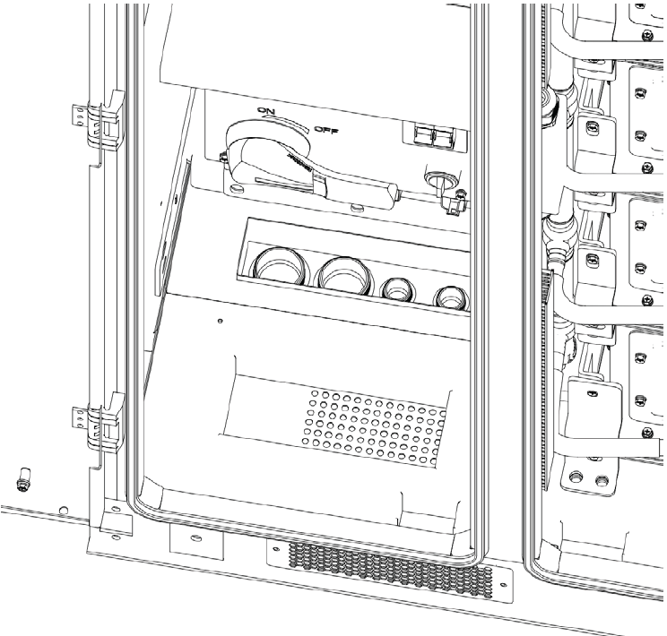
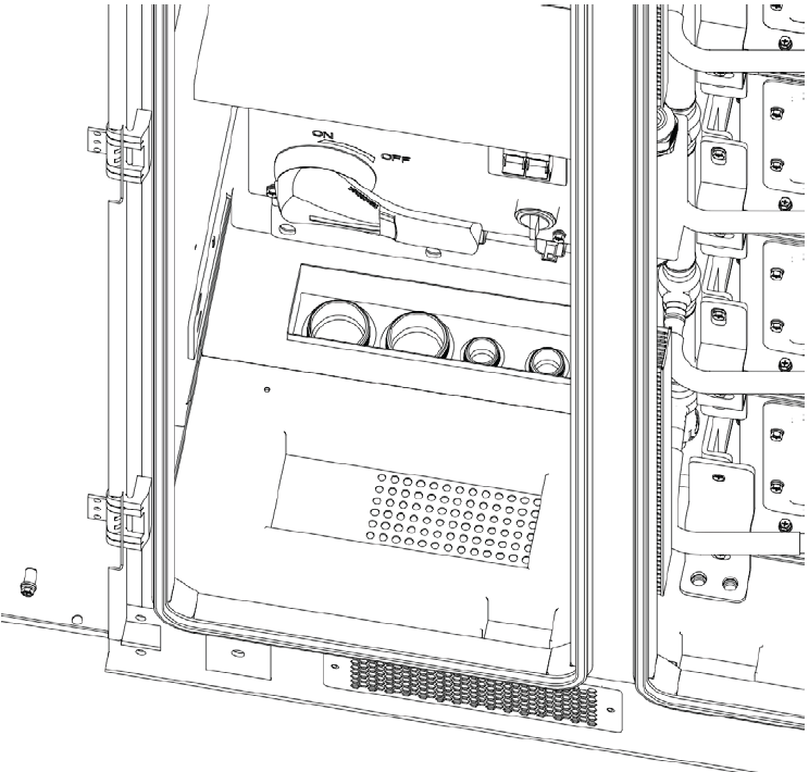
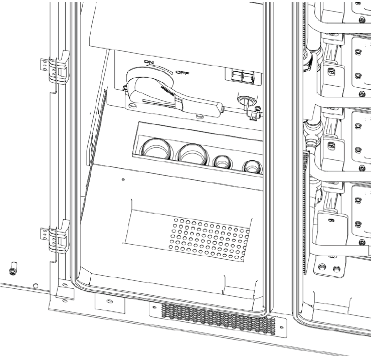
Conduit and Raceways. The AES Cabinet features a bottom-entry path for all wire connections to enter the battery cabinet. Cables route through underground conduits or the wire chase beneath the cabinet for a clean and organized installation.

You can also pass wiring through an entry on the bottom part of the left side wall of the cabinet.
NOTICE |
|---|
CABINET DAMAGE / VOID WARRANTY
Failure to follow these instructions may result in equipment damage. |